St Walburgas Road, Blackpool

£195,000
Sold STC

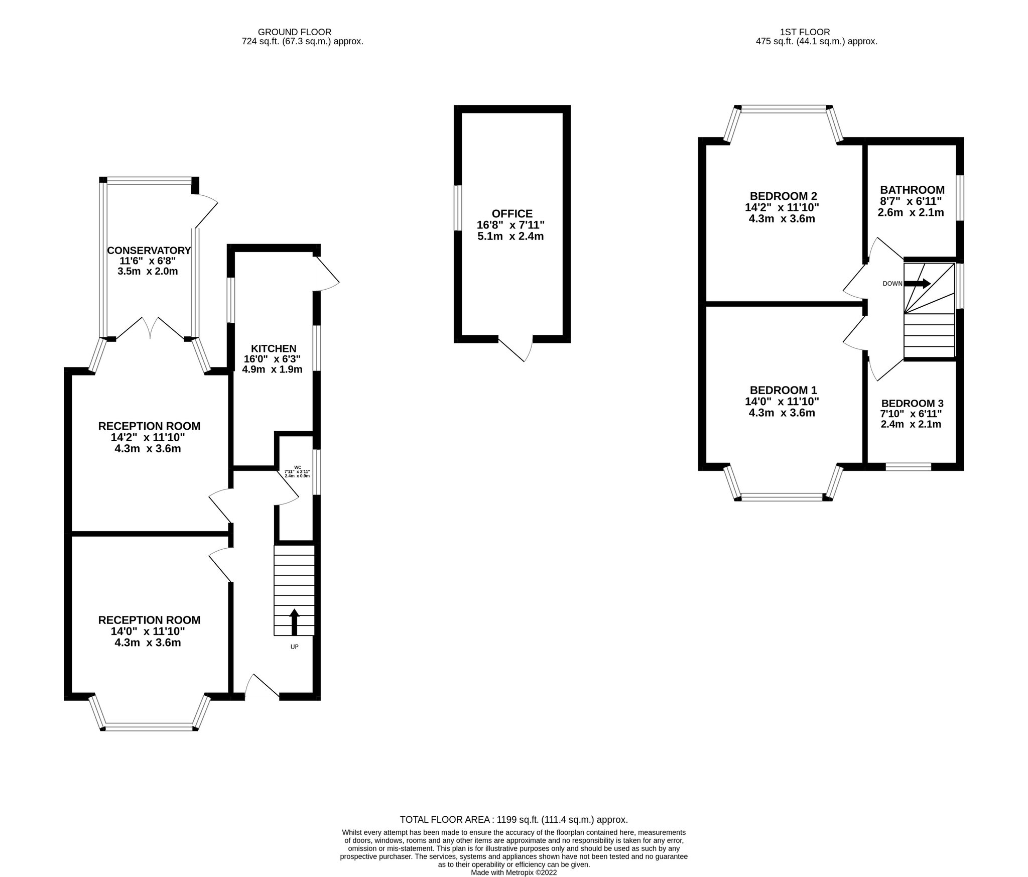
St Walburgas Road is a very sought after area of North Blackpool. It is perfectly located for local transport links and just over the road from Fylde Coast Hospital, Christ The King Primary School & St Mary’s Catholic College. The home is a three bedroom semi-detached property with Bay windows on the front elevation as well as the rear. Great condition and ready to move into! 

Reference Number: 25418922
Bedrooms: 3
Bathrooms:2
Reception Rooms:2
St Walburgas Road
Blackpool
FY3 7EF

  • Brand New Carpets Fitted
  • Brand New Rear Decking Area
  • Two Fantastic Reception Rooms w/ Bay Windows
  • Conservatory
  • Downstairs WC
  • Four Piece Bathroom Suite
  • Converted Garage into Great Office Space w/Power
  • Off Street Parking
  • Freehold
4.3m x 3.6m (14' 1" x 11' 10")

A large reception room featuring a beautiful bay window which allows an abundance of natural light to flood the room.
4.3m x 3.6m (14' 1" x 11' 10")

A great-sized reception with direct access to the attached conservatory.
4.9m x 1.9m (16' 1" x 6' 3")

A lovely family kitchen with external access.
3.5m x 2m (11' 6" x 6' 7")

A bright conservatory space, with great potential as a dining space or simply a relaxing sun room.
4.3m x 3.6m (14' 1" x 11' 10")

A gorgeous master bedroom featuring a large bay window, providing views over the road and supplying plenty of natural light throughout the day.
4.3m x 3.6m (14' 1" x 11' 10")

Another great-sized double, with a beautiful rear-aspect bay window.
2.4m x 2.1m (7' 10" x 6' 11")

A single bedroom perfect for a children's room, nursery, playroom, on even a vanity space!
EPC
Floorplan
[description]
[summary]

Enquire about this property